ネッツデザインがお届けする規格型住宅“風の家”

購入ガイド購入ガイド風の家の価格風の家の価格風の家のデザイン風の家のデザイン風の家の性能風の家の性能風の家の設備風の家の設備風の家のオプション風の家のオプション

HOME > 風の家の価格 > 風の家の価格

ステップ1

敷地の大きさに合わせて2つの基本プランをご用意。

まずは敷地条件や希望の条件に合うプランを決めます。
こちらのページでは代表的なプランをご紹介しております。あなたに最適な“風の家”を
見つけてください。

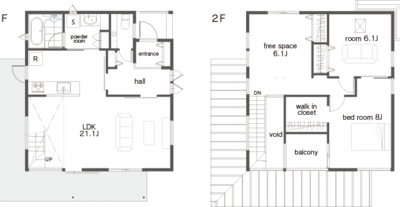
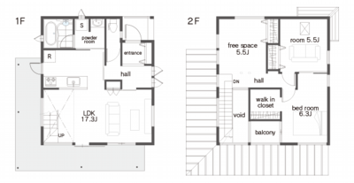
風の家|BASIC26

風の家|BASIC26

PLAN26B.pngPLAN26B.png1F床面積43.88㎡(13.27坪)
2F床面積40.99㎡(12.40坪)
延床面積84.87㎡(25.67坪)
施工面積117.56㎡(35.56坪)

標準本体価格
1,760万円より(税込)


風の家の基本形それがBASIC26
延床面積約26坪のプランに快適さやデザイン性などすべて込めたプランです。暮らしてみるとわかるちょうどよい広さ、家族の気配を感じられる吹抜とスケルトン階段優しい陽射しをたっぷりと取り込む大きな窓など一切妥協のないプランです。

風の家|BASIC30

風の家|BASIC30

PLAN30B.pngPLAN30B.png1F床面積52.65㎡(15.93坪)
2F床面積47.13㎡(14.26坪)
延床面積99.78㎡(30.19坪)
施工面積130.25㎡(39.40坪)

標準本体価格
1,947万円より(税込)


風の家にゆとりをプラス
BASIC30はBASIC26の基本プランはそのままに各居室に広さをプラスしたプランです。
もう少し広い部屋がほしいな…という方はこちらのプランをおすすめします。

※各仕様は商品性能の向上のため予告なく変更する場合がございます。予めご了承ください。

STEP.2 外観デザインを選ぼう!STEP.2 外観デザインを選ぼう!

“風の家”がますます身近になるコンテンツはこちら。

風の家清里モデルハウス行こう!風の家清里モデルハウス行こう!風の家の購入シミュレーション風の家の購入シミュレーション風の家オーナー様の声風の家オーナー様の声風の家の施工例を見る風の家の施工例を見る